科技创新
24
2010-06
“珠江新城富力中心工程超深基坑支护施工技术”成果简介
发布者:广东建工浏览次数:238917
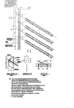
珠江新城富力中心工程为1栋54层的写字楼(地下5层),属钢管砼柱—框架—剪力墙结构,±0.00以上建筑面积为136676㎡,±0.00以下(地下室)建筑面积为36398㎡,紧邻珠江,地层变化大,地质复杂,地下水补充丰富及地下水位高,土质差,属软土地基。基坑长93.45hn1djz,宽77.9hn1djz,基坑土方开挖深度大,周长较长,一般深度自现地面以下约19hn1djz,最大深度达21hn1djz之多。基坑周长约340hn1djz,边坡支护面积约6460㎡。深基坑开挖时逢雨季,工期短,基坑开挖紧邻周围建筑物和其它工地,施工场地狭窄,基坑的土方开挖及其安全围护显得十分重要。因此,在深基坑周边采用人工挖孔桩围护,西面、北面、东面均采用4道预应力注浆锚杆及四道腰梁进行支护,南面基坑采用2道锚杆加一道斜支撑及2道腰梁进行支护,形成了一个稳固的支护体系,使基坑支护开挖既能满足工程的需要,又保证了施工方便、安全、可靠。珠江新城富力中心工程超深基坑支护方案,由于采用挖孔桩+预应力注浆锚杆+腰梁+斜支撑的支护体系,充分发挥了挖孔桩作为支护结构刚度大、施工技术成熟、工程适应性强、基坑施工风险性小,而支护桩顶可作为压顶梁、有利于抗浮、所需要场地小的优点,采用加设内支撑或预应力锚杆可以控制基坑的水平位移,保证基坑支护的稳定,提高工效,安全可靠,对于基坑规模大、土层地质条件复杂,开挖深度大、施工场地狭窄的同类型的基坑支护施工具有较高的参考和启发价值。


